Propera reurbanització de la plaça Llevant
La reurbanització suposarà la millora paisatgística de tot el conjunt, alhora que el farà més accessible i agradable per a veïns i vianants. Tot i així, es mantindrà la seva funció viaria, ja que aquest espai comprèn un dels carrers que creua el poble en sentit transversal.
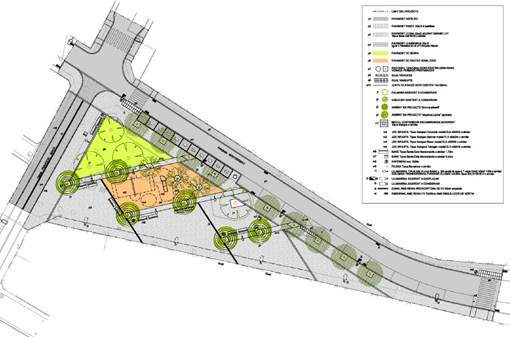
En la redacció del projecte s’han tingut en compte les necessitats pròpies del sector, caracteritzat per una important activitat comercial i per l’existència de carrers de diferents amplades i característiques. Així, el tram adjacent al carrer Francesc Macià es realitzarà a un únic nivell per aconseguir una visió homogènia, mentre que a l’Avinguda Montserrat es pavimentarà a dos nivells, amb una calçada de tres metres, una franja destinada a aparcament, una zona de càrrega i descàrrega per als comerços, i una vorera d’1,5 metres d’amplada.
Pel que fa a la plaça interior, diferents paviments crearan un joc cromàtic per diferenciar els tres espais que es crearan, cadascun d’ells destinat a un ús. D’una banda, es mantindrà l’espai ocupat per l’arbrat existent, que s’emfatitzarà amb la plantació de gespa i més arbres que formaran una petita zona verda. Un altre espai es destinarà a àrea de jocs infantils, amb paviment elàstic amortidor de caigudes i, finalment, un espai formigonat farà les funcions de zona d’estar i de descans.
El projecte preveu la instal·lació de tot el mobiliari urbà (jocs, bancs, papereres, pilones, etc), enllumenat, arbrat i sistema de reg necessaris, així com el soterrament dels contenidors de recollida selectiva. La durada prevista de les obres, un cop aquestes s’iniciïn, serà de 6 mesos.
Accions del document
