S’aprova el projecte per urbanitzar els carrers de la nova escola de Roses
D’aquesta superfície total, 9.300 m2 estan catalogats com a sòl públic, amb 5.500 m2 destinats a equipaments docents, 1.740 a zones verdes i 2.050 a vialitat, mentre que els 3.100 m2 restants es destinaran a la construcció d’habitatges (48 de promoció pública es posaran a la venda o lloguer a preu taxat i 31 seran de promoció privada).
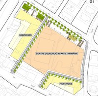
El projecte que s’acaba d’aprovar suposarà la dotació de la xarxa viària necessària en aquest sector d’acord als nous usos previstos (escolar i habitatge privat), així com la urbanització de tots els espais públics resultants.
Pel que fa a la vialitat, es preveu la perllongació del carrer de la Tramuntana, que travessarà tota l’illa fins enllaçar amb el carrer de Roger de Llúria. El carrer tindrà una amplitud de vuit metres i estarà format per un pas rodat i voreres a banda i banda, una d’elles amb una amplitud de tres metres que permetrà la incorporació d’una filera d’arbres.
A l’extrem sud-est del sector es preveu l’obertura d’un altre vial en forma de "L" que unirà el carrer Raval dels Grecs amb el carrer paral·lel Aristòtil i que facilitarà l’accessibilitat per als residents dels edificis de nova construcció.
Pel que fa a zones verdes i espais lliures es crearà un passeig de 15 metres d’amplada paral·lel al carrer Roger de Llúria, el qual es pavimentarà i es dotarà de l’arbrat i l’enjardinament, de l’enllumenat i del mobiliari urbà (bancs, papereres, jocs infantils) necessaris per al seu ús com a punt de trobada en els moments d’accés i sortida de l’escola. Aquest ús s’incrementarà també amb la creació d’una sèrie de terrasses que permetran la creació de zones d’estar connectades a través d’escales.
El pressupost total amb què compta aquest projecte d’urbanització és de 830.000 euros.
Accions del document
